风冷模块冷热水机组吊装、安装、调试注意事项
来源: 作者: 发布时间:2015-12-18 14:27 点击数:177
风冷模块冷热水机组吊装、安装、调试注意事项

一、机组吊装、安装注意事项
1.机组在搬运移动时应尽量保持水平,切勿倾斜30度以上,吊具上部应有支撑杆(见吊装示意图),以免伤及设备;

2.机组可安装于屋顶或室外庭院,且支撑面须有足够的强度,能承受机组运行时的重量;
3.机组不应安装在灰尘大、污物多、有腐蚀性气体和湿度大的场合;
4.机组安装场合须留有足够的空间(前后左右各1.5米以上)以供散热和方便维修人员进出;
5.机组就位时,应将防震软垫放于机组底框下,调整机组成水平后方可紧固底脚螺栓;
6.机组应尽量避免日晒、雨淋,建议加盖防雨防晒棚,但应保证出风口上方有3米以上的空间,以利空气的流通;
7.空调系统水管路安装、保温,应由专业人员设计指导、并执行暖通空调安装规范的相应规定;
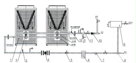
8.外部水管路系统必须安装防震软接头、过滤器、电子除垢仪、止逆阀、排水阀、排气阀、截止阀、膨胀水箱(见下图);膨胀水箱应安装在高于系统最高处1-1.5米;水箱容量约为整个系统水量的1/10;排气阀应安装在系统最高处与膨胀水箱之间;

冷冻水管路系统和膨胀水箱应作保温处理:
1.水泵与机组、水泵与系统水管路应采用防震软接头连接,同时管道和水泵要自设支架,以避免机组受力;
2.系统水管路冲洗和保温要在管道与机组连接前进行,严禁在未冲洗干净前进行管道和机组连接;
3.根据机组实际安装位置的高度,应考虑避雷。
二、调试过程注意事项
(一)水系统调试
1.打开所有系统回路中的截止阀(碟阀),关闭所有备用、维修用旁通的截止阀(碟阀),打开所有室内盘管的进出水阀,确保水系统的畅通。
2.打开膨胀水箱补水阀门,对系统进行补水,同时分别调节各风盘排气阀保证系统内空气排除,直到系统内空气排净。(一般要几个甚至十几个小时,水泵快速补水比较快)
3.检查水系统有无漏水情况,有漏水立即整改到位。
(二)水泵调试
1.水泵可与机组实现连动控制
按电控箱内的接线图,从主机接线排相应的水泵控制端子(控制信号为220V交流电)引出控制线到水泵接触器的控制线圈,从而实现水泵与机组的连控,机组开启水泵自动启动。

2.启动水泵几秒后关闭,观察水泵是否为正转,若反转则改变水泵电源相序。
3.水泵启动后观察进出水压力表指针是否稳定,若摆动比较大,水泵发出异常声音,说明系统内有空气,打开排气阀排气,直到系统内空气排净,压力稳定。(一般进0.3~0.4Mpa,出水0.2~0.3 Mpa)
4.观察水泵运行时是否震动剧烈,噪音过大,出现以上情况要求水泵厂家进行调试。
(三)靶式流量开关调试
水泵关闭状态下用万用表测量靶式流量开关的常开触点是否为断开,然后启动水泵,测试两触点应为连续接通状态,后关闭水泵后应为断开状态。
开机操作前必须做好以下工作:
1.按照要求,接好全部供电电缆与外部供电控制设备;
2.将机组通电以便预热润滑油,时间不少于1 2小时;
检查末端设备运转是否正常:
1.开启水泵,确认运转方向,检查系统是否正常;
2.检查膨胀水箱的水源,打开排气阀,排尽管道内空气:
检查压缩机和风机运转方向是否正确:
1.在主回路断电的情况下,进行试运转,检查动作顺序是否正常;
2.按需要设置制冷(热)运行模式。
以上各项工作完成后, 既可接通主电源并开启空调主机:待水温达到要求后,就可启动末端设备进入正常供冷(热)运行:机组一旦调试完毕并投入正常运行后,必须保持其电源相序不变。
除湿、热回收、净化空调设备供应商:无锡市百箭商贸有限公司 http://www.cesol.cn







